Bureaux à vendre à ROUEN 76100

Bureaux à vendre en plein coeur du centre de Rouen Rive-Gauche, à aménager selon vos besoins, déjà cloisonnés

Référence : 1080273-0V
Adresse ROUEN
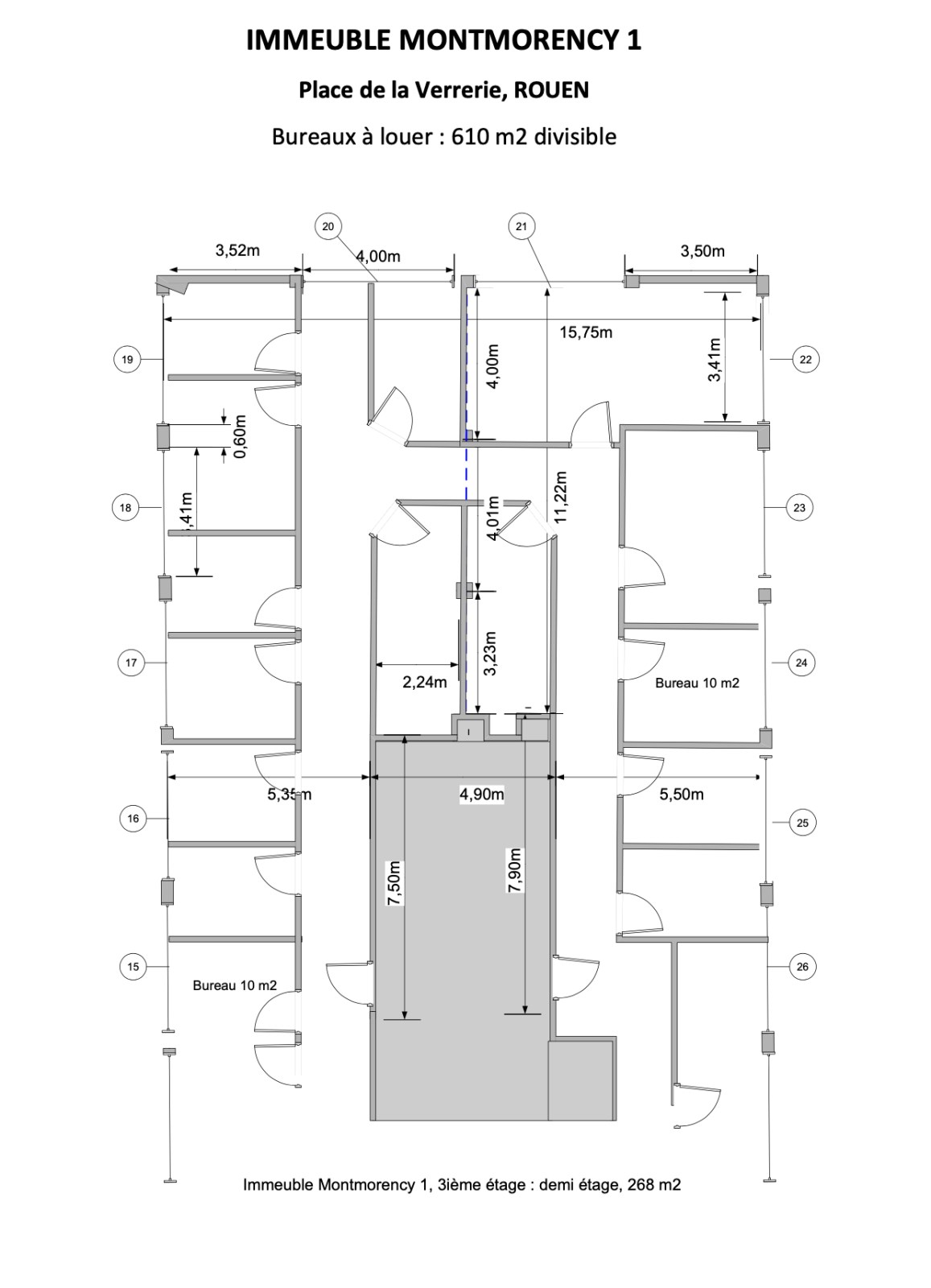
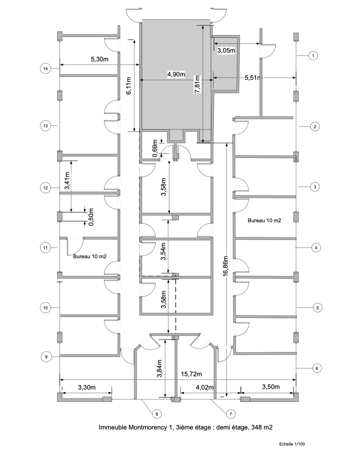
Surface 348 m² non divisible
Prix 450 € m² HD
Disponibilité Immédiate

Localisation & Accès


Prestations

Dans un immeuble de bureaux élevé en R+9 entièrement PMR, un plateau d'environ 348 m2.
Bail à construction s'achevant le 30 août 2051.
Les parties communes ont connu une réfection et disposent désormais de sanitaires PMR à chaque étage.
Multiples bureaux individuels d'environ 10 m2
Salles de réunion
Sols moquettés
Goulotte périphérique courant fort et faible
Faux-plafond en fibre minérale
Chauffage collectif
Sanitaires PMR sur les parties communes
Parking du centre Saint Sever
_____
Compris dans les charges :
Chauffage, eau, entretien des parties communes
_____
Une question ?

L’équipe Arthur Loyd Rouen est à votre écoute et vous accompagne le long de votre recherche.

Demander plus d'informations

Conditions financières et dispositions

Type Bureaux
Charges 31 € m²/an HT
Régime fiscal Droits de mutation
Impot foncier 16.8 € HT/m2/an BASE 2018
Honoraires vente 6% HT du prix NV à la charge de l'acquéreur
Étage Type Surface (m²) Prix (m² HD)
3 Bureaux 348 450,00 €
Total / 348 /
Eléments affichés non contractuels

Énergie

A B C D E F G
Diagnostic de performance énergétique

Diagnostic DPE en cours

A B C D E F G
Indice d'émission de gaz à effet de serre

Diagnostic GES en cours

Nous avons hâte de vous lire,
prenez contact !

Ces offres peuvent vous intéresser !

Bureaux Bureaux à vendre à ROUEN 76100

1138 m² divisible à partir de  275 m²

Prix sur demande
Bureaux Bureaux à vendre à ROUEN 76100

292.56 m² non divisible

2825 € m² HD
Bureaux Bureaux à vendre à ROUEN 76100

335.09 m² non divisible

2728 € m² HD
Vous n’avez pas trouvé l’offre qu’il vous faut ?

Déléguez votre projet à nos experts et soyez prévenus des nouvelles offres en avant-première correspondant à votre recherche.

Vous n’avez pas trouvé l’offre qu’il vous faut ?
Nous contacter
Nous utilisons des cookies et autres traceurs pour analyser et améliorer votre expérience utilisateur, réaliser des statistiques de mesure d’audience et vous permettre de lire des vidéos. Vous pouvez à tout moment modifier vos paramètres de cookies en désactivant le bouton "Performance & Analytics". En cliquant sur le bouton "Accepter tous les cookies" vous acceptez le dépôt de l’ensemble des cookies. Dans le cas où vous cliquez sur "Enregistrer mes préférences" ou refusez les cookies proposés, seuls les cookies techniques nécessaires au bon fonctionnement du site seront déposés. Pour plus d’informations, vous pouvez consulter la page "Charte de données personnelles".